Nhà Phố 5 Tầng Thiết Kế Lệch Tầng Để Đưa Ánh Sáng Tối Đa Vào Bên Trong

5 tỷ

293 Phạm Văn Bạch, Phường 15, Quận Tân Bình, Tp. Hồ Chí Minh

Minaka House là ngôi nhà phố 5 tầng điển hình tại các đô thị với chiều dài gấp gần 4 lần chiều rộng và chỉ có một mặt thoáng. Chính bởi vậy, một không gian sống thoáng sáng, đầy đủ các phòng chức năng và đưa thiên nhiên vào nhà nhiều nhất có thể là yêu cầu gia chủ đặt ra cho nhóm KTS.

Nhà phố 5 tầng thiết kế lệch tầng để đưa ánh sáng tối đa vào bên trong

Nhà phố 5 tầng

Nhà phố nổi bật nhờ mặt tiền mộc mạc, khác lạ so với những ngôi nhà xung quanh

Dựa trên mong muốn về một ngôi nhà có sự hiện diện cây xanh nhiều nhất có thể của gia chủ, ngay tại mặt tiền gạch đỏ thô mộc, KTS thiết kế hệ cây hoa um tùm, nhiều màu sắc. Ngoài việc điểm tô vẻ đẹp, cây cối còn góp phần điều hòa không khí, cản bụi, giảm nhiệt lượng vào không gian bên trong. 

Nhà phố 5 tầng

Những viên gạch thô đỏ làm nổi bật màu xanh của cây cỏ

Nhà phố 5 tầng

Lớp đệm cây xanh đóng vai trò bảo vệ ngôi nhà trước tác động của thời tiết và môi trường

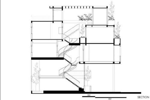
Với nhu cầu sử dụng lớn, việc mở rộng không gian sử dụng theo chiều dọc là điều tất yếu. Do đó, trên diện tích 90m2, mẫu nhà phố đẹp này được xây 5 tầng. Điều khó nhất của nhà phố là việc lấy sáng và đưa không khí vào bên trong sao cho tránh cảm giác tù túng, bí bách của nhà ống thường thấy. Để khắc phục nhược điểm này, các KTS đã lựa chọn thiết kế lệch tầng, tạo các khoảng lệch trục từ trong ra ngoài, đưa ánh sáng từ trên xuống thông qua “phễu” - hệ giếng trời lớn ở giữa nhà. Các khối trên lùi dần so với khối dưới ngay từ mặt tiền. Cầu thang bố trí không đồng trục nhằm điều tiết ánh sáng xuống không gian bên dưới và tạo cảm giác dễ chịu khi di chuyển lên tầng cao. 

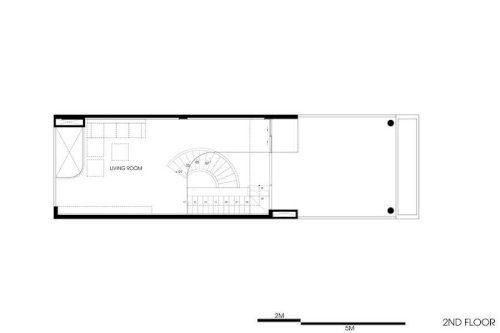
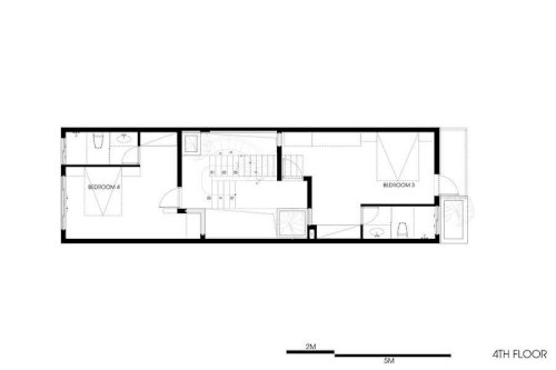
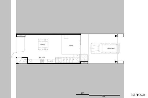
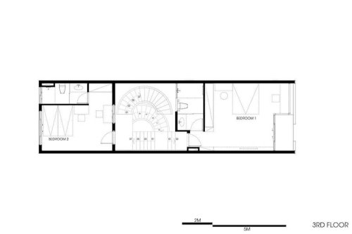
Thiết kế nhà phố 5 tầng với tổng diện tích là 400m2 với tầng 1 hoàn toàn dành cho khu vực sân và phòng bếp - ăn. Tầng 2 là phòng khách. Tầng 3 và 4, mỗi tầng có 2 phòng ngủ. Tầng 5 là không gian của phòng giặt, phòng làm việc. Các sàn được bố trí lệch độ cao giúp không khí lưu thông dễ dàng. Vật liệu mộc mạc như gỗ, bê tông, gạch mộc... sử dụng kết hợp đem đến sự thông thoáng, sáng sủa và ngập tràn cảm xúc tươi mới cho từng căn phòng.

Nhà phố 5 tầng

Mặt trước khối nhà được lùi dần theo tầng cao, mở dần khoảng trống cho khu khố

Nhà phố 5 tầng

Không gian sinh hoạt chính kết nối với khoảng sân bên ngoài bằng hệ cửa kính lớn

Nhà phố 5 tầng

Khu vực bếp - ăn là sự kết hợp linh hoạt giữa truyền thống và hiện đại với đồ nội thất tiện nghi nhưng mang màu sắc trầm ấm. Gầm cầu thang được tận dụng làm tủ kệ để đồ giúp tiết kiệm diện tích

Nhà phố 5 tầng

Cầu thang uốn lượn mềm mại nhưng rất chắc chắn 

Nhà phố 5 tầng

Phòng khách đơn giản, tạo ranh giới với khu vực khác bằng sự thay đổi vật liệu sàn từ bê tông sang gỗ ấm cúng

Nhà phố 5 tầng

Trần bê tông kết hợp cùng gạch mộc và tường kính giúp không gian vừa gần gũi vừa sáng thoáng

Nhà phố 5 tầng

Tầng 3 là không gian riêng tư dành cho hai phòng ngủ

Nhà phố 5 tầng

Trục thang được dời liên tục từ dưới lên trên giúp đưa ánh sáng len lỏi khắp nơi...

Nhà phố 5 tầng

...cũng như tạo ấn tượng thị giác độc đáo

Nhà phố 5 tầng

Nhà phố 5 tầng

Cây xanh bố trí đan xen giúp không khí trong nhà luôn trong lành

Nhà phố 5 tầng

Nhờ cách bố trí lệch tầng mà các thành viên trong gia đình dễ dàng quan sát và tương tác với nhau

Nhà phố 5 tầng

Vật liệu thô mộc hài hòa cùng ánh sáng từ giếng trời tạo nên vẻ đẹp riêng cho Minaka House

Nhà phố 5 tầng

Hàng lang sáng sủa, thoáng đãng dẫn ra ban công tầng 5

Nhà phố 5 tầng

Thiết kế ngôi nhà chỉn chu, tinh tế trong từng chi tiết

Không những khắc phục nhược điểm của nhà ống, ngôi nhà phố lệch tầng còn mang lại một không gian sống nhiều hơn thế. Đó là sự thoải mái, gắn kết giữa con người với con người và con người với thiên nhiên một cách tối đa.

Nhà phố 5 tầng
Nhà phố 5 tầng
Nhà phố 5 tầng
Nhà phố 5 tầng
Nhà phố 5 tầng
Nhà phố 5 tầng
Nhà phố 5 tầng

Bản vẽ mặt bằng công trình

Quý khách hàng có nhu cầu thiết kế xây dựng các công trình nhà ở như nhà phố, căn hộ, biệt thự hiện đại, biệt thự cổ điển, biệt thự tân cổ điển,...Vui lòng liên hệ với chúng tôi qua hotline: 0909.111.586 gặp kts Lê Văn Đạt để được tư vấn và hỗ trợ nhanh nhất nhé !

 

Từ khóa gợi ý:

Bình luận

HẾT HẠN

0909 111 586
Mã số : 16503095
Địa điểm : Hồ Chí Minh
Hình thức : Cần bán
Tình trạng : Hàng mới
Hết hạn : 06/02/2022
Loại tin :

Thường

Để mua hàng an toàn trên Rao vặt, quý khách vui lòng không thực hiện thanh toán trước cho người đăng tin!
⚠️ Thông báo quan trọng

THÔNG BÁO NGỪNG CUNG CẤP DỊCH VỤ SÀN THƯƠNG MẠI ĐIỆN TỬ VATGIA.COM

Kính gửi: Quý đối tác của Sàn thương mại điện tử vatgia.com

Công ty Cổ phần VNP Group – Đơn vị vận hành Sàn thương mại điện tử vatgia.com – trân trọng thông báo:

📅 Thời điểm ngừng cung cấp dịch vụ

Chúng tôi sẽ chính thức ngừng cung cấp dịch vụ Sàn thương mại điện tử vatgia.com kể từ ngày 31 tháng 3 năm 2026.

📌 Lý do

Nhằm phù hợp với định hướng và chiến lược phát triển hoạt động kinh doanh trong giai đoạn mới, Công ty quyết định ngừng cung cấp dịch vụ sàn thương mại điện tử vatgia.com.

📌 Lộ trình thực hiện

  • Ngừng tiếp nhận đăng ký và giao dịch mới: 07/03/2026
  • Hoàn tất xử lý giao dịch đang thực hiện: 10/03/2026
  • Đối soát và thanh toán cho đối tác: 10/03/2026
  • Tiếp nhận khiếu nại đến hết: 20/03/2026

📌 Quyền lợi người dùng

  • Các giao dịch đã phát sinh trước thời điểm ngừng hoạt động được xử lý theo quy định.
  • Dữ liệu người dùng được lưu trữ/bảo mật theo quy định pháp luật hiện hành.

☎️ Liên hệ hỗ trợ

Hotline: 024.39747886

Email: support@vatgia.com

Địa chỉ: 102 Thái Thịnh, Đống Đa, Hà Nội

Chúng tôi chân thành cảm ơn sự đồng hành của Quý đối tác trong suốt thời gian qua.

Trân trọng thông báo.